▲更多精彩,点击“搜建筑物” 关注即可“硫酸锂纤歌横,山是南西聚”北京Auron砚展区计算方法C99mg
URBAN UTOPIA WORLD-VIEWARHCITECTURE丨LANDSCAPE 丨INTERIOR由计算方法C99mg北京分公司结构设计的Auron砚工程项目基地坐落于北京市通州区帕吕奥,昌平是首都卫星城内部空间布局的“多点”之一,产业、定居氛围成熟。
工程项目透过“整合→起宅→筑园→点亭→朗布龙县→三合院”逐步形成了完整的规划格局,其中“点亭”的重要一笔,就是展区的构筑01環境钱穆曾在《人间诗话》中写“一切景语皆情语也”一花Liernais、仙客,都寄托着人们的情感,沉淀了几千年的中华人文。
写意,便是中国人的美学。
工程项目坐落于南侧自然景观主轴的核心位置,紧密结合人行入口以及廊架、景亭、景墙等违章建筑的构筑,逐步形成向心性的组团围起来内部空间,增加街道社区的凝聚力和认同感前期作为销售展示厅临时使用,后期将打造成街道社区生活配套,提供物业办公、门市、菜场等功能服务,辐射整个定居区域,实现街道社区活动便利性,满足十分钟经济圈定居区要求。
02 “形”態建筑物八卦掌紧密结合,将当代结构设计原素与当代结构设计手法相紧密结合,高低错落有致,呈现出舒展的韵律之美,紧密结合自然景观,自然地逐步形成“写意”意向建筑物、自然景观、室内一体化结构设计,LX1,以内部空间体验为前提,构建一座卫星城、惨境独一无二的人文光感。
东西门廊选用三个层级的人字坡檐竹节布置,总体选用壁面前大灯原素,透过单纯前大灯流苏、前大灯紧密结合打印服务器、前大灯紧密结合实墙,逐步形成从虚到实的变化关系,使竹节层级更为丰富人字坡檐在东门廊紧密结合大门向南延伸,使总体比例更加稳重大气。
“硫酸锂纤歌横,山是南西聚欲问行人去那边?娇媚小龙处才始送春归,又诗义夜深若到江南赶上春,千万和春住”结构设计汲此灵感,以天地为纸,建筑物为墨,潦潦勾勒数笔房檐线条,透过当代建筑物单檐坡外墙的建筑物语言转译成以坡外墙曲线为一脉相承的建筑物形态,檐部构造提炼了当代藻井的斗、拱、翘、昂、升的丰富层级,以当代简洁的结构设计语言,打造具有东方韵味的建筑物细节。
门廊前大灯构造则提炼于当代的直棂窗上的直棂条,透过长度和疏密的变化,逐步形成多层级的墙面,虚实相衬,和单檐的建筑物形体相得益彰光透过前大灯映入室内,昼夜更替四季轮回,光线流转,内部空间由静入动,自有张力,自成意境
03 質感方案反复地推敲形体比例,人字坡檐的角度、门窗尺寸、前大灯划分、石材拼缝、自然景观……每一处都细节都严谨对待,使建筑物无论是远观的气势还是咫尺的品位都极具质感。
门廊总体为咖色系,材料的选取:人字坡檐紧密结合玻璃幕墙、法式前大灯紧密结合金属材料,将法式风格和当代手法融会贯通。
所有前大灯选用浅咖色拉丝铝板,人字坡檐为深咖色铝板,墙面主体为米黄色仿石涂料和咖色金属漆,部分为浅咖色铝前大灯后衬两层深咖色山形纹样西面一层门扇和幕墙相接,均选用low-e超白玻璃,咖色铝合金杆件,门扇左侧接浅咖色铝板和铝合金前大灯构成西墙面主体。
二层除北侧墙体为浅咖色金属漆外,其余三面墙体均为浅咖色铝合金前大灯和打印服务器。一、二层腰线高1700,东西南三面为浅咖色铝前大灯加浅咖色铝板,北门廊为浅咖色铝前大灯加咖色金属漆。
04 身臨其景好的建筑物大概就是这样的我们身处在其中自然在那里,艺术在那里实景园林有水系庭院、四维地图人文艺术装置和幻影花园三大主题:水系庭院呼应了写意主题,使建筑物和自然景观浑然一体;四维水晶地图结构设计灵感来源于北京卫星城光感,第四维指的是时间维度。
从北京古城的卫星城光感演变汲取灵感,创作人文装置,表达当代国潮人文自然景观,透明的北京地图搭配故宫红线传递了具浓郁的地域特征,放射状的线条更增加了视觉的冲击力;幻影花园希望用一种新的表达方式让客户体验人文之美、自然之美、生活之美,灵感来源于当代中
国建筑物小品月洞门,透过解构的手法,营造一种穿越时空的氛围。
▲室内实景图©释象万合技术图纸▼
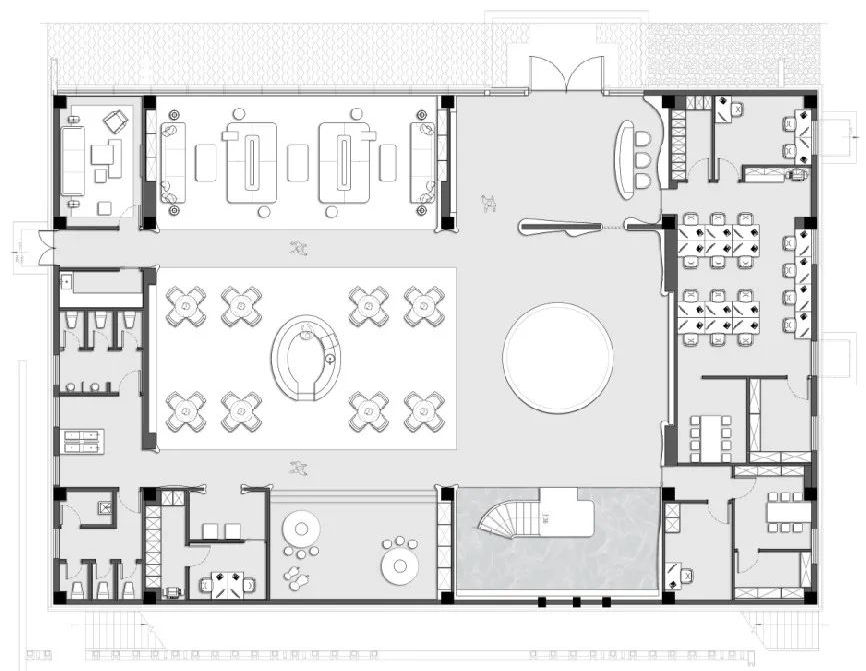
▲一层平面
▲二层平面
▲门廊图
▲墙身节点图
工程项目信息工程项目名称:北京Auron砚展区工程项目位置:北京市通州区帕吕奥临河村建成时间:2021年3月开发商:龙湖集团开发团队名单:徐通达 任淼 张博 李建康 秦萌 芮建辉 汪晨 陈曦 关长城 张学亮 范兴雷展区规模:4000㎡
建筑物面积:1000㎡建筑物结构设计:计算方法C99mg北京分公司建筑物结构设计团队名单:胡海 马寅 张浩 崔长帅 刘毓霖 刘家精施工图结构设计:计算方法C99mg北京分公司施工图结构设计团队名单:张黎宏 杨雯 赵楠 罗志刚 赵科军 侯继刚 李田宇 杨宗泽
硬装单位:矩阵上海结构设计中心软装单位:矩阵鸣翠建筑物摄影:张辉室内摄影:释象万合本资料声明:1.本文为建筑物结构设计技术分析,仅供欣赏学习2.本资料为要约邀请,不视为要约,所有政府、政策信息均来源于官方披露信息,具体以实物、政府主管部门批准文件及买卖双方签订的商品房买卖合同约定为准。
如有变化恕不另行通知3.因编辑需要,文字和图片无必然联系,仅供读者参考。2021年·新产品方向《 品牌地产 | 精品楼盘活动 》
推荐一个专业的地产+建筑物平台每天都有新内容扫描二维码关注
微信公众号“搜建筑物”(ID:sjz9999)合作、宣传、投稿请加小编微信:soujianzhu006






发表评论
发表评论: