一、引言 目前,建筑师在建筑上采用了比较新颖的金属锁扣板为装饰面料,这种体系在欧洲是比较常见的斜屋面做法,具有很好的装饰性和防水性能平锁扣金属板系统层次感强,视觉效果突出,具有古典建筑风格;系统安装简便,用扣件固定在下层支撑结构上,无需繁杂的机械安装;平锁扣系统几乎可以适合在绝大部分形状的建筑物表面安装(幕墙和地面的夹角不小于25°)。
锁扣板可以实现建筑设计的几何多样化,锁扣板的材质也有很多选择,比如铝板、锌版、钛板、不锈钢板、铜板等,不同的材质配合不同的表面处理,可以实行丰富的建筑效果通过几个工程的实践,平锁扣金属板体系、幕墙收边防水做法等可以在后继的工程中借鉴、推广、应用。
二、建筑工程概况: 2.1北京民生美术馆工程概况 北京民生美术馆项目位于北京市朝阳区北京彩色显像管厂厂区内,南邻酒仙桥北路,地属798艺术区其结构类型为框架剪力墙钢筋混凝土、局部钢结构,地下一层,地上2层,局部3层,总幕墙面积约11852 平方米。
由朱锫建筑设计咨询(北京)有限公司与北京市建筑设计研究院有限公司共同进行建筑设计建筑在保留了原工业建筑的粗旷,质朴与真实的基础上,融入了当代艺术的细腻,豪放与奢华,顺势而为,无用之用,将建筑与艺术进行了完美的融合。
目前,北京民生现代美术馆正在以其开放性、多元性、灵活性成为中国当代艺术的最大公共平台 2.1.1北京民生美术馆项目幕墙形式的简单介绍工程基本特点 为了突出建筑的表现力,设计师通过不同的幕墙形式,赋予了陈旧的工业厂房新的生命力。
北京民生美术馆幕墙项目的幕墙形式主要包括:明框透明玻璃幕墙系统,明框磨砂玻璃幕墙系统,金属锁扣板幕墙系统,玻璃采光顶、采光天窗系统,铝单板金属幕墙系统以及直立锁边金属屋面系统 2.1.2金属锁扣板在北京民生美术馆项目上的分布
北京民生美术馆项目包括旧楼改造部分和新建部分,建筑师在建筑上采用了平锁扣金属板为装饰面料,在原有的工业建筑改造上,金属锁扣板与原混凝土直接收口,预留了原工业建筑的粗犷与质朴;在新建建筑体上及火山口部分,金属锁扣板错落有致的分割效果极具装饰性。
金属锁扣板在北京民生美术馆上的分布见下图2.1:
图2.1金属锁扣板的分布效果图 三、 金属锁扣板的系统说明 金属锁扣板是通过固定形式的金属板折边后相互搭接形成的瓦状结构,金属锁扣板系统按其锁扣样式不同具体可分为直立锁边系统、内锁扣系统、平锁扣系统等。
3.1直立锁边系统说明 直立锁边金属面板通过机械加工形成公母扣,然后通过机械咬合或手工咬合成型,使得不同的金属板块被联接,并通过隐藏在内部的扣件将金属面板与基层固定.直立锁边系统是一个传统的安装系统, 按咬合程度分为单锁边和双锁边两种形式,通常屋面用双锁边,墙面和吊顶用单锁边。
3.2内锁扣系统说明 内锁扣系统属于开放式雨幕体系(即墙体内有通风空间),墙板用隐藏的扣件和螺丝安装于框架结构之上.连续纯净的平直线条展现出结构性的图案美感,强调了建筑物的体量和魅力 3.3平锁扣系统说明。
平锁扣系统金属板块四边采用简单的折边互相咬合,使用隐蔽式的扣件和螺丝安装,不同方式的板型排布,能够表达出不同的美学形式.平锁扣系统分为浮雕式和嵌入式两种加工形式平锁扣金属板按其形状又包括方形和菱形两种。
3.3.1平锁扣系统的特点及分类 在北京民生美术馆项目上应用的金属板为嵌入式的平锁扣金属板,平锁扣金属板正面有凸起边缘,背面有凹向边缘,结合简单特定形式的平锁扣金属板由工厂专用设备冲压形成,精度很高。
由于平锁扣金属板通常来说规格不大,因此通过互相锁扣可以完成复杂的几何造型嵌入式的平锁扣金属板按其形状包括方形和菱形两种其基本构造见下图3.3.1:
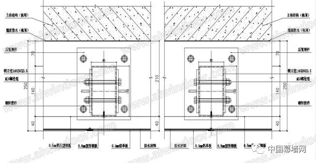
图3.3.1平锁扣系统经典构造示意图 3.3.2平锁扣金属板与内层的搭接 平锁扣金属板与内层的搭接包括防水层、保温层,吸音层、装饰层等构造,其基本构造中的钢板找平层固定在压型钢板上,不仅用于平锁扣金属板的固定,而且与下层的压型钢板可作为系统的面层刚性防水层;平锁扣金属板与压型钢板之间的防水材料为一道柔性防水层;压型钢板下的保温层,其保温棉的厚度可根据工程的节能要求设置;室内侧可根据建筑需求设置吸音层,吸音层由吸音棉与穿孔板组成;室内侧也可设置内装饰层,内装饰层可用GRC板或者其他面板完成。
3.3.3平锁扣金属板的加工 平锁扣金属板可在工厂预先加工成型,由于采用工厂专用设备冲压形成,其重复精度高、规格一致,可高效成批生产符合要求的金属锁扣板,其标准版型见下图3.3.3:
图3.3.1平锁扣成型金属板(矩形、菱形 3.3.4平锁扣金属板的安装 平锁扣金属板的安装为面板之间上下搭接咬合,就如同传统瓦式屋面中的瓦片之间的安装例如菱形锁扣板的安装,菱形板利用金属扣件固定,板与板之间相互咬合,菱形板的咬边为上下搭接的关系,利于排水,其构造可形成一道防水体系,其安装示意见下图3.3.4:。
图3.3.4平锁扣金属板的安装示意图 四、 平锁扣金属板在本工程中的应用 本工程采用有金属光泽,抗氧化性好的铝镁锰合金板作为金属幕墙面材应用的平锁扣金属板主要有以下三个体系: 4.1原建建筑墙面上梁柱之间的方形平锁扣金属板。
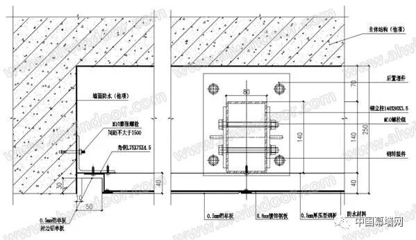
方形平锁扣金属板分布于北京民生美术馆的南立面东西两侧及庭院东西立面的旧建筑改造部分,位于原建筑梁柱之间由于原建筑存在较多设备用地脚,单梁吊车支座、轨道地基等原有结构,同时在旧建筑采光窗拆除后,建筑洞口存在边界不齐,形状不规整,大小尺寸不统一等问题,需要处理好锁扣板与混凝土的交接。
方形平锁扣金属板主要是起到装饰与防水的作用,保温由原建筑的砌体完成,方形平锁扣金属板分布于混凝土之间墙面方形平锁扣金属板的基本节点见下图4.1:
图4.1墙面方形平锁扣金属板的基本节点示意图 由于不考虑保温与内装的效果,此体系并不是常规的做法,需要引起重视的是金属锁扣板与周边混凝土的交接处理方式,如处理不好其交接位置极易出现漏水,我们的处理方式是在砌体上先做沙浆及SBS防水涂料,锁扣板的防水卷材在边部与内层防水层搭接,但由于是旧楼改造项目,原结构混凝土表面平整度较差,与金属锁扣板之间如果采用对口的方式无法实现比较美观的效果。
通过与建筑师的交流,确定在边部预留50mm的槽口,金属板内嵌,这样既可解决混凝土不整齐的收口问题,又能解决防水层搭接的处理问题具体做法见下图4.1.1:
图4.1.1墙面方形平锁扣金属板的收口节点示意图 方形平锁扣金属板在北京民生美术馆原有建筑改造上,金属锁扣板与原混凝土直接收口,不仅预留了原工业建筑的粗犷与质朴,而且金属锁扣板的细腻与精巧也充分的展现了出来。
建成后的旧楼改造部分效果见下图4.1.2:
图4.1.2墙面方形平锁扣金属板的效果图 4.2新建建筑墙面上的菱形平锁扣金属板 菱形平锁扣金属板分布于建筑中部新建造型及屋顶火山口部分的立面与斜屋面,其立面的典型的形状见下图4.2:
图4.2菱形平锁扣金属板的典型形状示意图 由于新建建筑的外立面的各面之间的夹角各不相同,外形多样,拐角纵多但是采用菱形平锁扣金属板可解决拐角问题,平锁扣板在转角处通过金属板直接折边,有连续性,能够适应各面之间的转换。
由于是新建建筑,需要考虑保温及室内的处理方式,因此在菱形平锁扣金属板后面增加了保温层,根据需要还可以增加室内吸音层及装饰层墙面上的菱形平锁扣金属板基本节点做法见下图4.2.1:
图4.2.1菱形平锁扣金属板基本节点示意图 菱形平锁扣金属板在北京民生美术馆现有钢制结构上的应用,幕墙外形整洁,拐角处理规整,其整体造型完美的呈现在眼前,建成后的新建金属幕墙效果见下图4.2.2:
图4.2.2新建建筑体菱形平锁扣金属板的现场图片4.3新建建筑斜屋面及吊顶上的平锁扣金属板 斜屋面及吊顶位置与立面情况相似,由于新建建筑的外立面与水平面夹角各不相同,同时综合了立面、屋面、吊顶等多种形式。
菱形平锁扣金属板可在转角处通过金属板直接折边,能够适应各面之间的转换立面与屋面及吊顶之间的过度自然,建筑物的外形整体性高,能够将建筑师理想的建筑外形完美的呈现
图4.3斜屋面及吊顶平锁扣金属板现场图片 建筑中部新建造型的斜屋面及吊顶部位分布为菱形平锁扣金属板,如下图完工后的效果所示,见图4.3 五、 平锁扣金属板系统的特性 平锁扣金属板系统是比较成熟的墙面与屋面体系,平锁扣金属板不仅适用于平直墙面、弧形墙面及屋面系统,还可以用于吊顶等系统,当设计为斜屋面时可适用于25%以上的坡度。
平锁扣金属板的排布方式也是多种多样,可适用于横向、竖向以及菱形排布平锁扣金属板系统外装饰层上的选择非常丰富,铝镁锰板、锌板、铜板、钛锌板、不锈钢板等延展性好的、耐候性佳的材料都可以选择平锁扣金属板的厚度可为0.5、0.7、0.9等,平锁扣金属板的规格也可以根据建筑师的要求进行调整。
通常的规格在600mm以内,过大的板将导致其平坦度下降,而且由于扣件只能分布于四周,对金属板的支撑不利,但是可以选择单方向的加长、增加扣件固定数量并计算后确定规格由于平锁扣金属板加工为标准板,有利于控制每块板的尺寸误差,板与板的视觉接缝均匀错开,比常规矩形分格线更加容易保证平齐,而且面板之间无密封胶,保证了板面整洁的同时,免去了打胶工艺的不利影响。
平锁扣金属板系统按其连接方式分为浮雕式和嵌入式两种加工形式,体现出不同的建筑外观效果具体的连接方式见下图5.1:
六、 平锁扣金属板系统的相似项目介绍 6.1天津老城厢鼓楼中心街区改造项目 天津老城厢鼓楼中心街区改造项目,建筑面积197015平方米,在该项目的四个地块中,设计师在屋面采用直立双锁边系统和外墙立面中大量采用了钛锌板平锁扣系统,灰色的色调既呼应了传统大院的地区特色,同时,金属的质感也增添了时尚感和现代性,使传统建筑既能重现往日风采,又能满足时代要求,进而成为老城厢的历史文化载体。
工程实例见下图6.1:
图6.1天津市鼓楼商业街墙面平锁扣系统实例 6.2天津公馆高端服务式公寓项目 天津公馆高端服务式公寓项目,建筑面积52400平方米,在该项目中其屋面采用了菱形平锁扣金属板,材质为铝锰镁合金板及钛锌板,颜色为烟雾蓝色及天然灰色,天津公馆以新一代知识财富阶层的生活价值观为设计导向,菱形平锁扣金属板层次感强,视觉效果突出,更增添了天津公馆的古典风格及高贵感。
工程实例见下图6.2:
图6.2天津公馆菱形平锁扣金属屋面系统实例 除在本国有少量类似工程以外,在欧洲、美洲、澳大利亚及亚洲,从私人住宅到公共建筑,如机场、歌剧院、会展中心、体育馆和博物馆等,到处都可以看到平锁扣金属板的身影。
七、结束语 金属锁扣板在北京民生美术馆建筑上的应用将建筑师的设计理念完美的展现了出来,并得到了建筑师的认可欧洲在上世纪就已经大量采用金属锁扣板装饰建筑斜屋面及墙面,在金属锁扣板面材的选择上,铜板、锌板随着时间推移而演变出古朴的质感也备受欢迎,平锁扣系统为建筑学的创新追求打开了一个全新景象,此系统产生的光学效果在大面积的幕墙上尤其显现。
金属锁扣板系统给建筑师在建筑效果上增添了更多的选择,建筑师极富创造的构思可将我们的视觉引领到另一层次 参考文献 [1] 《建筑幕墙》,中华人民共和国家标准, GB/T 21086-2007 [2] 《采光顶与金属屋面技术规程》,中华人民共和国行业标准,JGJ255-2012
[3] 《金属与石材幕墙技术规范》,中华人民共和国行业标准,JGJ133-2001 [4] 王勇,郑家玉 《TPO防水卷材在某机场航站楼屋面翻修工程中的应用》,《中国建筑防水.屋面工程》,2011.19
[5] 王德勤、张洋、陈启明、廉洪波 《鄂尔多斯博物馆双曲异形金属屋面的设计》 2010.06 [6] 王德勤、张洋、杨涛 《鲁台经贸中心-会展中心异型金属屋面》,《建筑幕墙》,2013.01 [7] 杨涛 《北京民生现代美术馆幕墙工程的分析与设计》,《建筑幕墙》,2016.04
作者:张洋 杨涛 来源:2018《建筑门窗幕墙创新与发展》延伸阅读:异型金属板幕墙和屋面在设计中的难点解析 1 引言 当今建筑外装饰构造设计中,幕墙在建筑外表面起着建筑外围护结构的作用,它随着高层建筑的建设而迅速的发展着。
建筑除了营造人们生活工作的环境外,建筑形象也给人们精神产生影响建筑艺术在表现功能个性的同时也给人们精神上享受现在的建筑不再是千篇一律的玻璃幕墙,而是多种材料搭配,有凹有凸,有曲有折各种外形的组合幕墙,由它构成的建筑造型新颖多变、 标新立异,构图虚实对比强烈,环境色彩鲜艳明快,人们喜闻乐见的建筑艺术效果,给现代化城市面貌增加了魅力。
作为建筑外观装饰中最有表现力的层面就是面板了,面板通过其丰富的色彩和多变的造型来实现建筑师们对其建筑表观艺术的完美追求通常幕墙所用的面板包括玻璃、金属板、石材等几类,它们各自根据其自身材质的功能特点来实现其对建筑表观功能要求。
金属板的加工和安装在建筑外装饰面板中,由于其自身的金属特性,诸如造型多变、连接方式简单、易清洁、色彩丰富、材质多样、功能性强等特点,为建筑师在建筑艺术创作中,提供了丰富、可行的表现材料和手段在建筑师追求建筑外观新、奇、特等充斥着后现代唯美主义的建筑设计中,会出现不少另类、多变的三维曲面造型,这给幕墙公司的技术改进和研发提出不小的挑战和巨大的契机。
由于面板造型的改变,其加工制作难度,施工难度都有很大的提高本文就针对在设计中的难点,结合实际工程案例作一些粗浅的解析 1.1、异型金属板幕墙应用的部分工程案例; 在铝板外装饰板的造型上,可以作为异型的方案有多种。
比如,在平板面上进行几何形状的裁剪,并做边缘收口如三角形板、棱型板、不等边多边型板等,或在板内开孔,在平板内切割异型图案等,可以将多块平板拼成双曲外形,用平板拟合成双曲面此种板的加工方案要基本是采用切割、焊接、铆拼接的方法成形的;也可以在平板铝板板面上进行单曲面加工,然后再进行几何形成的裁剪,可以将多个单曲板拼装拟合成双曲面。
单曲板的加工大部分采取滚弯的方法成形;还可以在铝板块上直接进行双面的造型加工,然后由多个双曲板拼成双曲面,或将有着不同样双曲造型的单块板组拼成异型面 1.1.1、在平板面上进行几何形状的裁剪,并做边缘收口;
英国伦敦体育馆酒店的外幕墙就是采用了3mm厚的铝单板,剪切成多种不等边的多边形,根据建筑设计的要求拼装成幕墙的平面几何形状,很好的展示了该建筑幕墙的特性(如图1.1.1-a)内蒙古演艺中心的铝板幕墙是在铝单板内开孔,或在单块铝板边缘加工成半圆后用多块铝板拼装成大圆孔,来实现建筑设计的要求(如图1.1.1-b)。
1.1.2、在平板铝板板面上进行单曲面加工,然后再进行几何形成的裁剪,可以将多个单曲板拼装拟合成大的曲面或双曲面; 如有着奇异造型的鄂尔多斯博物馆建筑的整体外形是在金属屋面基础上,采用了多块带状的3mm厚曲面铝合金板,按设计模型拟合成的(如图1.1.2-a)。
深圳保利剧院异型金属屋面的不规则椭球体,其外装饰板是采用多个三角形板块拼接拟合成的(如图1.1.2-b) 山东鲁台会展中心异型金属屋面的外装饰板,就是典型的菱形拼接面是采用形状与大小基本相当的3mm厚菱形铝合金板块拼接成的曲面。
该项目采用了平板和曲面板的有机组合,确保了曲面造型顺滑,保证了建筑的外视效果(如图1.1.2-c)
1.1.3、在铝板块上直接进行双曲面的造型加工,然后由多个双曲板拼成双曲面; 正在施工中的哈尔滨文化中心大剧院的双曲面金属屋面(如图1.1.3-a),和已经施工完成的哈尔滨木雕馆双曲面金属面板(如图1.1.3-c)。
以及深圳不锈钢椭球形金属面板等项目(如图1.1.3-b)都是采用了形状和尺寸各异的双曲面铝合金单板,按照各自的建筑曲面要求,进行大面积的拼装组合在每块金属板之间都要进行有序的拼装拟合,才能形成理想的双曲面造型。
2、设计难点的分析 在以上介绍的几个异型金属板幕墙应用的工程案例中,我们可以看出,各种不同的建筑外形对面板的设计施工难度的要求也不同,由于板面的形状和体形发生了很大的变化,其连接方式和受力系统也产生了很大的变化。
要想很好的完成建筑造型,就必须对每一个项目在幕墙设计时要充分的考虑到在确保各项性能的同时,实现其特有的建筑造型 2.1采用连接节点方案的考量; 在这类幕墙或屋面的设计中,对每个连接节点的特殊性要有充分的理解。
对安装成形后的效果要有提前的预计,确定出关键的节点设计、采购、加工、安装和检测的方案对可能在过程上出现的问题要提前制定相应的办法,才能顺利的完成项目 2.1.1 、首先分析一下“鄂尔多斯博物馆”的屋面系统的构造连接节点;
鄂尔多斯博物馆建筑的整体外形是由多个不规则的双曲面体形有机顺滑的集合成一个不规则的异型体主体结构为钢结构支撑系统,其表面大部分为金属屋面和铝装饰板(带)所覆盖,整体造型在柔顺中能透出刚毅这种类似的建筑在国内是极为少见的。
由于其体型和功能的要求,对金属屋面来说,其设计与施工的难度很大,必须结合实际工程情况采取特殊的、能够适应本项工程的结构,节点设计和施工工艺方案才能顺利完成本项工程本工程屋面系统的构造如下:(自下而上)主体支撑钢结构;檩托,可进行双向调整的连接机构;檩条,Φ121×5的弧形钢管;硬防水板,底层硬质防水镀锌钢板(厚度为1.5mm);防潮层,聚乙烯防潮层;隔声层,玻璃纤维增强硅酸钙板;防水板T型支座系统;保温层,双层50mm保温棉;防水透气膜;铝镁锰金属屋面板,厚度为0.9mm,高直立锁边;转接件,铝合金材质的连接装置;弧形铝支撑管,Φ40×3的弧形铝管;转接件,铝合金材质的连接装置;面层铝合金装饰板,厚度为3mm铝板,表面按建筑要求的颜色进行氟碳喷涂。
(如图2.1.1-a\b)
从节点图中可以看出,本项目的金属屋面部分的支承结构为分三层——主体支撑异型钢网壳结构,在此之外为钢檩条,作为主结构的次龙骨,屋面板等功能材料是依附在次龙骨之上的,第三层支承结构是直立锁边金属屋面板外部的弧形铝管檩条,是最外层铝板装饰带的支撑结构。
依附在支撑结构上,能起到各项功能作用的板材、膜材共有七层---最外层为铝合金装饰层、铝镁锰金属面板层、防水透气膜层、保温棉层、硅酸钙板隔声层,聚乙烯防潮层、底层为镀锌钢板硬防水层每一层都有着相应的功能,同时每一层也都有它特殊的工艺特点,这就需要整体设计中全面综合的考虑每一部分设计方案。
2.1.2、山东鲁台会展中心金属屋面菱形铝合金装饰板的连接系统设计; 山东鲁台会展中心,异型金属屋面金属屋面板与面层装饰板连接系统的设计,是将转接件在直接安装在直立锁边的屋面板上,起到转接横向铝管的作用。
连接装置,用铝合金型材加工制成通过两个件转接,可以满足不同角度要求其目的是可以安装面层铝合金装饰板弧形铝支撑管是采用挤压的铝合金型材,起到连接外装饰板的作用(如图2.1.2-a\b)
菱形铝板装饰板的外饰面虽然都是双曲面的,但曲率变化有规律,都是按照事先的曲线用一片片的菱形板铝合金板拼成的 每块板之间的夹角都是变化的,是按照事先设计好的曲面切线之间的角度确定的 2.1.3、内蒙古演艺中心采用连接节点方案的考量;。
由于本项目铝板幕墙部分位于建筑封闭面外侧,为开缝的装饰面钢龙骨及连接件全部暴露在室外, 由于温度和风荷载等自然因素的影响,必然会造成连接件与龙骨之间的摩擦,破坏龙骨的防腐层同时,由于螺栓孔与螺栓之间的缝隙很难密封,这会造成钢龙骨内侧的锈蚀。
这不仅使龙骨很难满足建筑设计年限要求,而且锈蚀水还会造成幕墙龙骨和面材的污染(如图2.1.3-a)由于本工程铝板的横向分格与水平面呈30度夹角,而主体结构为水平布置如果在层间采用插芯对接或者其他使龙骨下端释放的连接方式,那么在层间的位置,就形成横龙骨跨越两个变形区的情况。
从而导致变形累积,容易造成此处横龙骨及相应铝板面材由于产生较大形变而破坏同时,插芯位置的密封问题,同样会导致龙骨内侧锈蚀问题
为了避除上述的情况,采用定距释放方式释放水平变形幕墙横龙骨与竖龙骨之间的连接采用焊接,间隔5榀竖龙骨(约11米)布置伸缩缝的形式,释放一次结构变形的方式而对于温度引起的结构形变,参考《钢结构设计规范》(GB50017)中对于结构温度区段长度值的规定,进行设计。
(如图2.1.3-b) 2.1.4、哈尔滨文化中心大剧院金属屋面双曲面板的设计; 在哈尔滨大剧院的建筑设计中,着重强调了金属屋面造型的三维曲线在贯穿整个建筑的大空间曲线、曲面中还包含着多个小的,独立的异型曲面。
利用这些小的不规则的曲面在光线下反射的效果,来充分强调整体大曲面的质感和建筑整体的韵律感(如图2.1.4-a)
在整体的金属屋面中包含着一部分独立的异形三维曲面板,其尺寸大小、高低、形状都不相同(如图2.1.4-b\c)这就要求在连接节点设计时要充分考虑到在保证对每一块板的连接安全性的同时还要考虑在每块板之间有相对应的连接装置来限制在安装过程中,板与板之间的高低误差和位置误差。
在对此类不规则的三维曲面设计时,需要重点考虑的是面板与结构的连接安全度,建筑整体屋面和幕墙的各项物理性能保障方案外饰面各板块之间的衔接、曲面与曲面边线的过渡还要考虑曲面边部自然形成的空间曲线的顺滑度。
应在设计阶段就要充分考虑到施工误差的消除和处理方案最好是设计成面板的误差过大就无法安装,只要能装得上,就能保证误差在可控的范围内的节点 2.1.5、白家庄酒店在建筑设计时对金属幕墙板的要求:该项目在建筑设计时,建筑师利用金属板的可塑性性能,在外幕墙的层间上制造了一个奇特的有着梦幻效果的金属板与玻璃的复合幕墙 。
让有着奇异三维造型的金属板与通透的大透明玻璃有机的形成了一个整体(如图2.1.5-a)
该项目在设计阶段,相关设计和曲面板生产单位对方案的可行性进行了充分的分析同时对难度极大的外墙双曲面金属板造形作了1:1的样板(如图2.1.5-c\d)双曲面板采用的是大型薄壁铸铝技术制造成型的,其效果的表现力很好。
在能充分展示艺术效果的同时又能保障金属幕墙自身的安全性能
该项目,虽然在施工阶段由于各种原因,未能使用上三维曲板而是采用了较为简单的曲面铝板作为金属幕墙的外饰板,在建筑效果上打了折扣(如图2.1.5-b)但由于此项目在方案认证时已做了大量的可行性验证工作及特殊节点的设计,为今后在这一类异型幕墙的设计积累了不少可贵的经验。
3、双曲面板在施工中易出现的问题及加工制作方案3.1、双曲面板在施工中易出现的问题; 在对多个异型的双曲金属面板的幕墙和屋面,在设计和施工过程中易出现的问题进行总结后我们感到,虽然每个项目都有着自己的个性和特点,但在他们之间也存在着共同要注意的问题。
比如每块曲面板自身的形状不规整,没能很好的按设计要求的形状成形,而存在着较大的误差;板块与板块之间的对口不平整,有高低差、缝隙宽度差、扭曲差等现象,在建筑物的边部收口线部位易出现不顺滑、折线过于硬直等现象。
当然,在普通金属板幕墙和金属屋面中易出现的问题,在异型的双曲面金属板幕墙和屋面上更易出现,如天沟的布设、伸缩缝的处理、防水保温层方案的选定、边部节点的处理等等,由于篇幅的原因在这就不多叙述了 3.2、双曲面板设计难点和问题的处理方案。
现在,由于三维软件的应用,我们对于各种三维曲面板的曲面度设计已经不成问题了然而三维曲面的设计重点就应该放在整体曲面成形的工艺方案上面,从这里找出工艺重点和设计难点,进行分析拿出解决方案 经过对多个项目的设计经验总结,我们认为:双曲面板的设计难点是在于近拟合点和过盈量的确定和控制。
也就是说在工艺设计过程中,对单曲拟双曲时出现的板面模拟裂口多大时作为板长的控制点;在相邻的面板,板块高差在多大之内作为误差的控制点才能保证曲面的顺滑和牢固连接 下面用几个已完成的实际工程的案例来说明一下,根据不同项目的不同要求,是如何制定的板块连接工艺方案。
3.2.1、深圳不锈钢椭球形金属屋面的曲面板拼装工艺,是采用板与板的相邻边用插板或插销作为共用连接件连接的方案用这种方法来控制板块之间的对口不平整、高低差和形状扭曲差(如图3.2.1-a\b)决定板面拟合差的关键问题是确定安装精度(要求在连接件的可调范围内)。
用插板或插销作为共用连接件的连接方案的最大好处是,如果板块误差过大将无法进行安装从而保证了双曲面安装的整体效果
3.2.2、英国伦敦体育馆酒店幕墙的异型金属面板安装工艺方案,是采用多块装饰板在同一个底板上进行拼装的办法来保证面板之间的平整、等高采用这种方案的好处是,只要将底板的面处理好,就能保证面板的整体效果。
一般这种办法多使用在平面异型板幕墙上的效果较好(如图3.2.2)
3.2.3、哈尔滨木雕馆的异型金属屋面装饰板的三维曲面形状,是采用次檩条钢管轴心曲线,按设计时的预成形曲面,进行定距梯度布置(如图3.2.3)来保证整体曲面的形状用固定在檩条上的可调节连接件来保证板块之间的平整度。
3.3、双曲面板的加工制作方案 双曲面板的加工比较复杂特别是有局部凹凸面的板块其加工方法也是多种多样的可以用平板通过模具形成如爆炸成形、挤压成型、压延等方案也可以采用曲面成型机进行加工;或采用多点数字化模具进行拉伸成形;还可以根据其复杂度,采取薄壁铝合金铸造技术来制作双曲面外装饰板。
下面,简单介绍一下常见的幕墙用铝合金双曲面板的几种生产制作方法 3.3.1、爆炸成形的方法; 爆炸成形就是利用炸药借助于爆炸时所产生的冲击波和气团,通过传压介质(通常用水)使毛坯在极短的时间内(0.001s)产生塑性变形,以获得与型腔形状和尺寸一致的制件。
爆炸成形装置简单,操作容易,加工工件的尺寸一般不受设备能力限制,在试制和小批量生产大型工件时经济效益尤其显著爆炸成形可以完成拉深、胀形、冲裁、压印、校平等工序 3.3.2、薄壁铸造成形的方法; 铸造三维曲板是结合现代航空工业先进生产加工工艺和有色金属材料学原理,使金属液态成型(铸造)后,达到复杂三维曲面的薄壁板材。
该板材可适用于建筑外装饰中的金属挂板,从而解决了一般金属外墙挂板造型单一、三维曲面加工困难的问题该板材同其他金属板材相比较,具有如下特点:造型可以复杂多变,三维造型易实现,保证曲面连接的完整性和连贯性(如图3.3.2-a\b)。
通过对有色金属(铝、钛、镁等)合金实施精密铸造、重力铸造、砂型铸造等工艺,实现对板材薄壁的控制,解决在外载荷作用下的自身强度和变形问题与其他有效保温、低耗的材料复合,能达到建筑外墙板的保温、隔热、隔声、防水等节能需求。
三维曲面的薄壁板的厚度可根据要求制作成大于2mm的任意厚度长、宽尺寸可根据要求制作成大于2mx2m的大型双曲面板块必要时可以拼接成任意尺寸的三维曲面超大板块在用作外幕墙挂板时,可根据建筑物的体形要求,制作成任意尺寸的单元板块。
薄壁三维曲面板的表面色彩可根据建筑师的要求,采用氟碳喷涂、粉沫喷涂、滚涂等工艺进行涂装其表面由于是铸造成形的还可以根据要求铸造成粗糙面或酥松面等效果 4、结束语 近年来,建筑幕墙的形式在不断的发展,新材料新工艺在进一步的增添着建筑幕墙的内容。
我们在传统的金属幕墙基础上,用改变面材的造型,增加面材的艺术性,来给建筑师一个表现艺术构思的手段,也是一种非常好的方法特别是对有着很大可塑性空间的金属板幕墙和屋面,只要在单独板块或集群板块上增加塑造内容,就能更好的反映出建筑的美学效果,来张显建筑个性。
参考文献 [1] 《玻璃幕墙工程技术规范》,中华人民共和行业规范, JGJ102-2003 [2] 王德勤,张洋,陈启明,廉洪波,鄂尔多斯博物馆异型金属屋面的设计,幕墙设计,2010-3期 [3] 王德勤,张洋,杨涛,鲁台经贸中心异型屋面设计,中国建筑防水,2012-7期【完】
专家介绍
王德勤铝门窗幕墙委员会专家组工作单位:北京德宏工程技术科研中心技术职称:教授级高工专业:门窗幕墙标准编制、建筑玻璃与金属结构设计与研究 专长:大型金属屋面、双曲面索结构点支承玻璃幕墙的产品开发、节点设计、施工技术研究与应用。
在国内是最早进行点支式玻璃幕墙研发、推广人之一作者:王德勤来源:中国幕墙网立足协会 服务行业400-60-54100
长按二维码,可识别指纹






发表评论
发表评论: