大自然·卫星城·文化·壳状Natural·City·humanity·Interaction该案结构设计以“卫星城霓虹”做为结构设计主旋律,以卫星城在合作开发中与大自然生态的结合为思索和突破口,在loft艺术风格基础上重新加入大自然和文化的环境温度,转作石材漆、木方、石料、蓝紫色地板、冲孔砖块、黑钢、铝前大灯等织物的右军和凉意,打造出两个随心所欲消闲的轻工业风内部空间。
冲孔砖块上绘出卫星城与黄金时代的霓虹找寻·内部空间结构设计的大自然押韵
谈话·内部空间的押韵与壳状内部空间结构设计的机能产业布局,是他们在结构设计操作过程中与他们的谈话,也是内部空间里人与大自然、人与人间的沟通交流。
栏杆回廊横跨整座组合式内部空间,使楼中的沟通交流更为大自然、畅快,地板的蓝紫色渗透结构设计是他们细腻的小心思,让产品销售服务中心穿裙装的女生们驻足这里时更为方便。
守望·与大自然和解,在卫星城中守一份静谧从容
心灵与大自然相结合才能产生智慧,才能产生想象力!
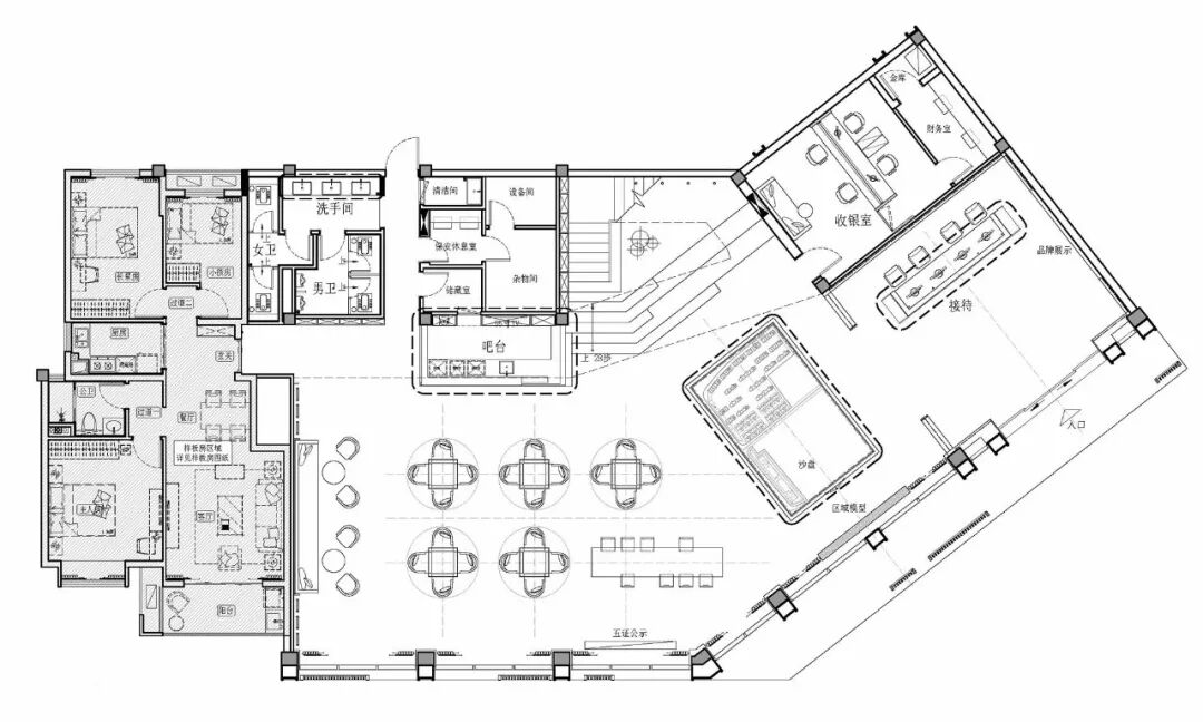
▲克莱尔堡苏州象安北产品销售服务中心-一层平面
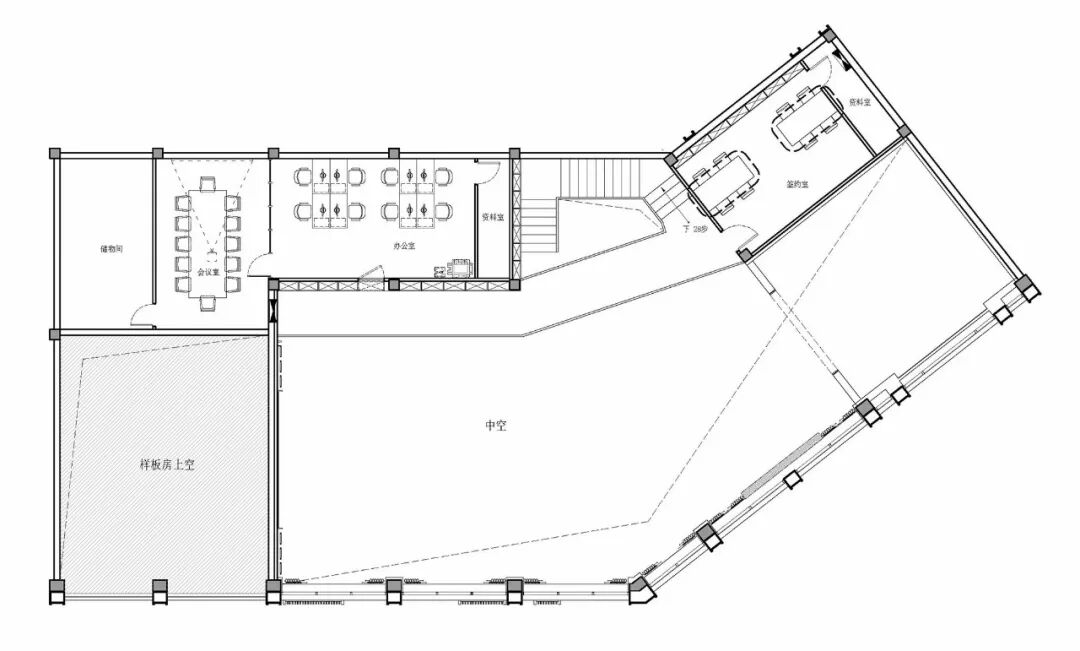
▲克莱尔堡苏州象安北产品销售中-二层平面 项目名称:克莱尔堡江苏·苏州象安北产品销售服务中心 结构设计单位:朗昇结构设计 项目类型:产品销售服务中心 主创结构设计:袁静、钟建福、杨镇武 项目地址:中国·江苏 项目面积:620㎡ 主要用材:石材漆、木方、蓝紫色地板、石料、冲孔砖块、黑钢、铝前大灯等
图文编辑:飞说文化名师联为您精心收集整理了全网最新最全1606套精品售楼服务中心结构设计案例,后续还会不断更新,欢迎点击文章阅读原文下载和查阅!
名师联分享的案例皆节选于智库&硬盘套餐,微信平台限制上传高清原大图,原图片经过压缩处理才能上传,所以公众号里图片不是高清原大图,原大图完整全套资料请添加小编微信:www360mslcom或客服QQ 2852358318
电话:18915756346咨询,免费推广投稿邮箱:58359487@qq.com。
微信往期已发布的案例会不定时清理删除,欢迎微信文章或后台留言您需要的资料,需要什么资料可扫描下方小编微信二维码咨询, 小编在线免费为您查找!( 已添加其它名师联客服号均可咨询无需重复添加 )
VIP会员访问下方链接或阅读原文下载相关案例http://v.360msl.com/article-default-276.htm







发表评论
发表评论: